O przedmiocie

Wykonam projekt instalacji alarmowej SSWiN (również domofon, CCTV, LAN…) domu jednorodzinnego, mieszkania lub innej nieruchomości.

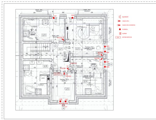
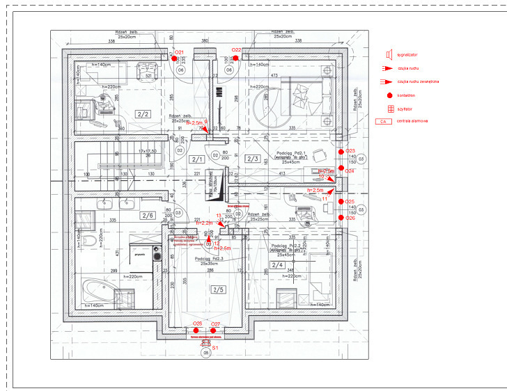
Projekt będzie zawierał:
- plany z rozmieszczeniem elementów oraz wskazówki ich montażu
- schemat blokowy
- opis techniczny
- zestawienie materiałów
- wycenę

Projekt pozwoli na samodzielne wykonanie instalacji, wraz z podłączeniem przewodów do projektowanych urządzeń.
Jeśli zależy ci na optymalnie (technicznie, ilościowo i cenowo) dobranym rozwiązaniu sprzętowym, a także prawidłowym rozmieszczeniu elementów instalacji dających szanse prawidłowego zadziałania proszę o kontakt w sprawie wyceny usługi.

Stan Nowy
Marka inna
Inne ogłoszenia sprzedającego
Zobacz wszystkie

Inne ogłoszenia sprzedającego

Chcesz kupić więcej z jedną dostawą?
Wybierz kup teraz i w kolejnym kroku dodasz więcej przedmiotów od tego sprzedającego.
Zgłoś naruszenie zasad
Oferta: 5051b0f2-6ad9-493f-b103-3c3c0cccdf58

Podobne wyszukiwania

Pozostałe Warszawa  
(64)
Pozostałe Szamotuły  
(40)
Pozostałe Poznań  
(39)
Pozostałe Łódź  
(36)
Pozostałe Wrocław  
(36)
Pozostałe Kraków  
(33)
Pozostałe Gdańsk  
(31)
Pozostałe Elbląg  
(28)
Pozostałe Białystok  
(24)
Pozostałe Wiśniowa  
(20)
Pozostałe Kalisz  
(18)
Pozostałe Zielona Góra  
(17)
Pozostałe Rzeszów  
(16)
Pozostałe Katowice  
(13)
Pozostałe Zgorzelec  
(12)
Pozostałe Klikuszowa  
(11)
Pozostałe Radom  
(11)
Pozostałe Kielce  
(10)
Pozostałe Szczecin  
(10)
Pozostałe Nowa Jastrząbka  
(10)
Pozostałe Tęgoborze  
(10)
Pozostałe Bydgoszcz  
(10)
Pozostałe Stary Sącz  
(9)
Pozostałe Włocławek  
(8)
Pozostałe Bytom  
(7)
Pozostałe Brzesko  
(7)
Pozostałe Zbąszyń  
(7)
Pozostałe Opole  
(6)
Pozostałe Stare Budkowice  
(6)
Pozostałe Sosnowiec  
(6)
Pozostałe Lublin  
(6)
Pozostałe Piotrków Trybunalski  
(6)
Pozostałe Witaszyce  
(6)
Pozostałe Gdynia  
(6)
Pozostałe Emów  
(6)
Pozostałe Radzyń Podlaski  
(6)
Pozostałe Koszalin  
(5)
Pozostałe Stara Biała  
(5)
Pozostałe Starowa Góra  
(5)
Pozostałe Pieszyce  
(5)
Pozostałe Trzebnica  
(5)
Pozostałe Luboń  
(5)
Pozostałe Świebodzin  
(5)
Pozostałe Marki  
(5)
Pozostałe Rybnik  
(5)
Pozostałe Krapkowice  
(5)
Pozostałe Ruda Śląska  
(5)
Pozostałe Gliwice  
(5)
Pozostałe Biała Podlaska  
(5)
Pozostałe Kępno  
(5)
Pozostałe Olsztyn  
(5)
Pozostałe Wołomin  
(5)
Pozostałe Legnica  
(5)
Pozostałe Toruń  
(5)
Pozostałe Zamość  
(5)
Pozostałe Barlinek  
(5)
Pozostałe Gorzów Wielkopolski  
(4)
Pozostałe Gniezno  
(4)
Pozostałe Tuszyn  
(4)
Pozostałe Ostrzeszów  
(4)
Pozostałe Jarocin  
(4)
Pozostałe Grodzisk Mazowiecki  
(4)
Pozostałe Pszczyna  
(4)
Pozostałe Krasne  
(4)
Pozostałe Wałbrzych  
(4)
Pozostałe Puck  
(4)
Pozostałe Dąbrowa  
(4)
Pozostałe Gryfino  
(4)
Pozostałe Kartuzy  
(4)
Pozostałe Lębork  
(4)
Pozostałe Mikołów  
(4)
Pozostałe Mrągowo  
(4)
Pozostałe Tczew  
(4)
Pozostałe Leszno  
(4)
Pozostałe Nowy Sącz  
(4)
Pozostałe Bolesławiec  
(4)