Opis i cechy

Dom, Dosin, Serock, Legionowski, 130 m²

Ogłoszeniodawca: Stołeczne Centrum Nieruchomości

Kontakt: Beata Wrześniewska Informacje szczegółowe

Tytuł ogłoszenia: Dom jednorodzinny dwulokalowy w Dosinie

Nr oferty ogłoszeniodawcy: D-118077-16

Pow. działki: 445.00 m²

Powierzchnia użytkowa: 130.00 m²

Pokoje: 5

Liczba łazienek: 1

Liczba sypialni: 4

Czy łazienka z WC: Osobno

Typ rynku: Wtórny

Budynek

Rok budowy: 2025

Materiał budowlany: bliźniak

Materiał budowlany: beton

Stan budynku: do wykończenia

Mediakanalizacja (szambo)woda (miejskie)

Udogodnieniamiejsca parkingowe (garaż)

Do sprzedaży dom jednorodzinny dwulokalowy w Dosinie

Lokalizacja: Dosin, gm. Serock, okolice Zalewu Zegrzyńskiego

Opis nieruchomości:

Przedstawiamy Państwu wyjątkową ofertę sprzedaży domu jednorodzinnego dwulokalowego, położonego w cichej i spokojnej miejscowości Dosin, niedaleko Zalewu Zegrzyńskiego. Ta atrakcyjna nieruchomość stanowi idealne miejsce dla rodzin szukających spokoju i komfortu, a jednocześnie bliskości przyrody i infrastruktury.

Charakterystyka domu:

Lokale połączone są jedynie garażami

Powierzchnia lokalu: 130 m

Stan: deweloperski

Powierzchnia działki: 445 m

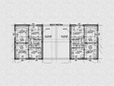
Opis wnętrza:

Dom składa się z:

Parter:

Przestronnego salonu z jadalnią i aneksem kuchennym (35,5 m)

Pokoju/gabinetu (8,5 m)

Wiatrołapu

WCGarażu

Piętro:

Trzech sypialni (11, 12, 14 m)

Holu

Łazienki

W budynku tynki gipsowe oraz wszystkie instalacje: hydrauliczna, elektryczna, alarmowa, TV i internet. Dom wyposażony w instalację gazową ale na życzenie klienta możliwy jest montaż pompy ciepła za dopłatą 35 tys. Ogrzewanie podłogowe rozprowadzone w całym domu.

Zewnętrze i otoczenie:

Działka będzie ogrodzona, na podjeździe kostka brukowa, chodnik oraz opaska wokół domu. W najbliższym sąsiedztwie domy jednorodzinne i dwulokalowe.

Lokalizacja i infrastruktura:

Nieruchomość zlokalizowana jest w malowniczej okolicy, z łatwym dostępem do Zalewu Zegrzyńskiego, co sprzyja rekreacji i relaksowi. W pobliżu znajduje się dobrze zaopatrzony sklep spożywczy oraz przystanek autobusowy, co zapewnia wygodę codziennego życia.

Kontakt:

Zainteresowanych zapraszamy do kontaktu w celu uzyskania dodatkowych informacji oraz umówienia się na prezentację nieruchomości.

Jako profesjonalny pośrednik nieruchomości pobieramy wynagrodzenie w formie prowizji.

Zapewniamy pełne zaangażowanie, dbając o Państwa bezpieczeństwo i komfort podczas procesu transakcyjnego. Lokalizacja: Dosin

Powierzchnia domu: 130 m2, Powierzchnia działki: 445 m2, Rodzaj domu: 1/2 bliźniaka, Cena: 685 000 zł ( 5 269 zł/m2 )

Powierzchnia całkowita: 130 m2, Powierzchnia mieszkalna: 130 m2, Powierzchnia salonu: 28 m2, Rodzaj dachu: dachówka, Liczba sypialni: 4, Liczba łazienek: 1, Liczba WC: 1, Standard: developerski, Liczba pokoi: 5, standard: developerski, materiał: beton komórkowy, dach: dachówka, woda: miejska, kanalizacja: szambo, garaż: garaż, elektryczność, gaz, ogrodzenie, telefon, Więcej informacji oraz możliwość umówienia spotkania: Agent prowadzący: Beata Wrześniewska

Stołeczne Centrum Nieruchomościwww.pln.com.pl

Nad jakością obsługi oferty czuwa pani Magdalena Łabuć - licencjonowany pośrednik w obrocie nieruchomościami, nr licencji 19420

Godziny otwarcia: pon. - pt.: 9:00 - 19:00; sob.: 9:00 - 14:00--- Zapraszamy ---

Lokalizacja:

Kraj: Polska

Wojewodztwo: Mazowieckie

Powiat: Legionowski (pow.)

Gmina miejsko-wiejska: Serock (gm.)

Miejscowosc: Dosin(ref. A1541509677)

Cena za m² 5269.23 zł
Rynek wtórny
Rok budowy 2025
Powierzchnia działki 445 m²
Ogrzewanie kominkowe
Media prąd
Liczba pokoi 5
Powierzchnia mieszkalna 130 m²
Powierzchnia użytkowa 130 m²
Kanalizacja szambo
Stan budynku do wykończenia
Materiał budowlany beton
Rodzaj zabudowy bliźniak
Miejsce parkingowe garaż
Zgłoś naruszenie zasad
Oferta: 59b2286c-e1a4-46e4-be2b-94fe44c0c30e

Podobne wyszukiwania

Domy na sprzedaż Warszawa  
(1073)
Domy na sprzedaż Grodzisk Mazowiecki  
(362)
Domy na sprzedaż Osowiec  
(155)
Domy na sprzedaż Opole  
(128)
Domy na sprzedaż Jaktorów  
(100)
Domy na sprzedaż Lublin  
(78)
Domy na sprzedaż Brwinów  
(77)
Domy na sprzedaż Jelenia Góra  
(66)
Domy na sprzedaż Ustroń  
(60)
Domy na sprzedaż Gliwice  
(59)
Domy na sprzedaż Stargard  
(57)
Domy na sprzedaż Kobyłka  
(53)
Domy na sprzedaż Kielce  
(51)
Domy na sprzedaż Osielsko  
(45)
Domy na sprzedaż Sosnowiec  
(41)
Domy na sprzedaż Łazy  
(38)
Domy na sprzedaż Mikołów  
(38)
Domy na sprzedaż Łochowo  
(38)
Domy na sprzedaż Legionowo  
(38)
Domy na sprzedaż Myszków  
(33)
Domy na sprzedaż Międzyborów  
(29)
Domy na sprzedaż Mogilany  
(28)
Domy na sprzedaż Zgierz  
(26)
Domy na sprzedaż Szczyrk  
(26)
Domy na sprzedaż Rączna  
(26)
Domy na sprzedaż Ełk  
(24)
Domy na sprzedaż Zabierzów  
(24)
Domy na sprzedaż Elbląg  
(23)
Domy na sprzedaż Wołowice  
(23)
Domy na sprzedaż Wiązowna  
(21)
Domy na sprzedaż Mikołajki  
(21)
Domy na sprzedaż Gryfice  
(20)
Domy na sprzedaż Żywiec  
(20)
Domy na sprzedaż Mysłowice  
(19)
Domy na sprzedaż Goleszów  
(19)
Domy na sprzedaż Grabówka  
(19)
Domy na sprzedaż Głosków  
(19)
Domy na sprzedaż Łeba  
(19)
Domy na sprzedaż Nowy Targ  
(18)
Domy na sprzedaż Chrząstawa Mała  
(18)
Domy na sprzedaż Wałcz  
(17)
Domy na sprzedaż Jeszkowice  
(17)
Domy na sprzedaż Wołów  
(17)
Domy na sprzedaż Nadolice Małe  
(17)
Domy na sprzedaż Skrzeszew  
(17)
Domy na sprzedaż Koło  
(17)
Domy na sprzedaż Siemianowice Śląskie  
(17)
Domy na sprzedaż Strzeniówka  
(16)
Domy na sprzedaż Nieporęt  
(16)
Domy na sprzedaż Charzyno  
(16)
Domy na sprzedaż Zielonka  
(16)
Domy na sprzedaż Chodzież  
(16)
Domy na sprzedaż Kolbudy  
(16)
Domy na sprzedaż Będzin  
(16)
Domy na sprzedaż Jarosław  
(16)
Domy na sprzedaż Libertów  
(15)
Domy na sprzedaż Zawada  
(15)
Domy na sprzedaż Szczecinek  
(15)
Domy na sprzedaż Myślenice  
(15)
Domy na sprzedaż Bochnia  
(15)
Domy na sprzedaż Skierniewice  
(14)
Domy na sprzedaż Chrząstawa Wielka  
(13)
Domy na sprzedaż Limanowa  
(13)
Domy na sprzedaż Wadowice  
(13)
Domy na sprzedaż Jantar  
(12)
Domy na sprzedaż Chrzanów Mały  
(12)
Domy na sprzedaż Tarnowo Podgórne  
(12)
Domy na sprzedaż Komorniki  
(12)
Domy na sprzedaż Międzybrodzie Bialskie  
(12)
Domy na sprzedaż Zgorzała  
(12)
Domy na sprzedaż Pielgrzymowice  
(11)
Domy na sprzedaż Białe Błota  
(11)
Domy na sprzedaż Malawa  
(11)
Domy na sprzedaż Słupca  
(11)
Domy na sprzedaż Stężyca  
(11)
Domy na sprzedaż Strzelin  
(11)
Domy na sprzedaż Kamionki  
(11)
Domy na sprzedaż Brzoza  
(11)
Domy na sprzedaż Ściejowice  
(11)
Domy na sprzedaż Ostrów Wielkopolski  
(11)
Domy na sprzedaż Stryszawa  
(11)
Domy na sprzedaż Kudowa-Zdrój  
(10)
Domy na sprzedaż Boguchwałowice  
(10)
Domy na sprzedaż Łuków  
(10)
Domy na sprzedaż Wyszków  
(10)
Domy na sprzedaż Borówiec  
(10)
Domy na sprzedaż Gościno  
(10)
Domy na sprzedaż Okuninka  
(10)
Domy na sprzedaż Kamień  
(10)
Domy na sprzedaż Pasłęk  
(10)
Domy na sprzedaż Plewiska  
(9)
Domy na sprzedaż Michałowice-Wieś  
(9)
Domy na sprzedaż Mielenko  
(9)
Domy na sprzedaż Pępowo  
(9)
Domy na sprzedaż Młochów  
(9)
Domy na sprzedaż Pisarzowice  
(9)