Opis i cechy

Dom, Reda, Wejherowski, 79 m²

Ogłoszeniodawca: WGN Nieruchomości

Kontakt: Roksana Domaros Informacje szczegółowe

Forma własności: własność

Stan nieruchomości: deweloperski

Typ nieruchomości: bliźniak

Nr oferty ogłoszeniodawcy: 11240035

Ulica: Rekowo Dolne

Pow. działki: 297.00 m²

Powierzchnia użytkowa: 78.70 m²

Liczba pięter: 1

Liczba poziomów mieszkania: 2

Pokoje: 4

Typ rynku: Pierwotny

Budynek

Rok budowy: 2025

Materiał budowlany: bliźniak

Materiał budowlany: beton

Udogodnieniadostęp do drogi (utwardzona)ogrodzenie (metalowe/kute)

Na sprzedaż oferuję nowoczesny dom jednorodzinny w zabudowie bliźniaczej, położony w spokojnej i zielonej części Redy - Rekowo. Nieruchomość znajduje się na kameralnym osiedlu niskiej zabudowy, w sąsiedztwie domów jednorodzinnych. Lokalizacja zapewnia doskonałe połączenie ciszy i prywatności z wygodnym dostępem do infrastruktury - w promieniu kilkuset metrów dostępne są przystanki komunikacji miejskiej i PKP, szkoły, przedszkola, sklepy oraz kościół.

Reda jest też świetną bazą wypadową nad morze - do plaż w Rewie czy na Półwyspie Helskim można dojechać w ok. 20 minut.

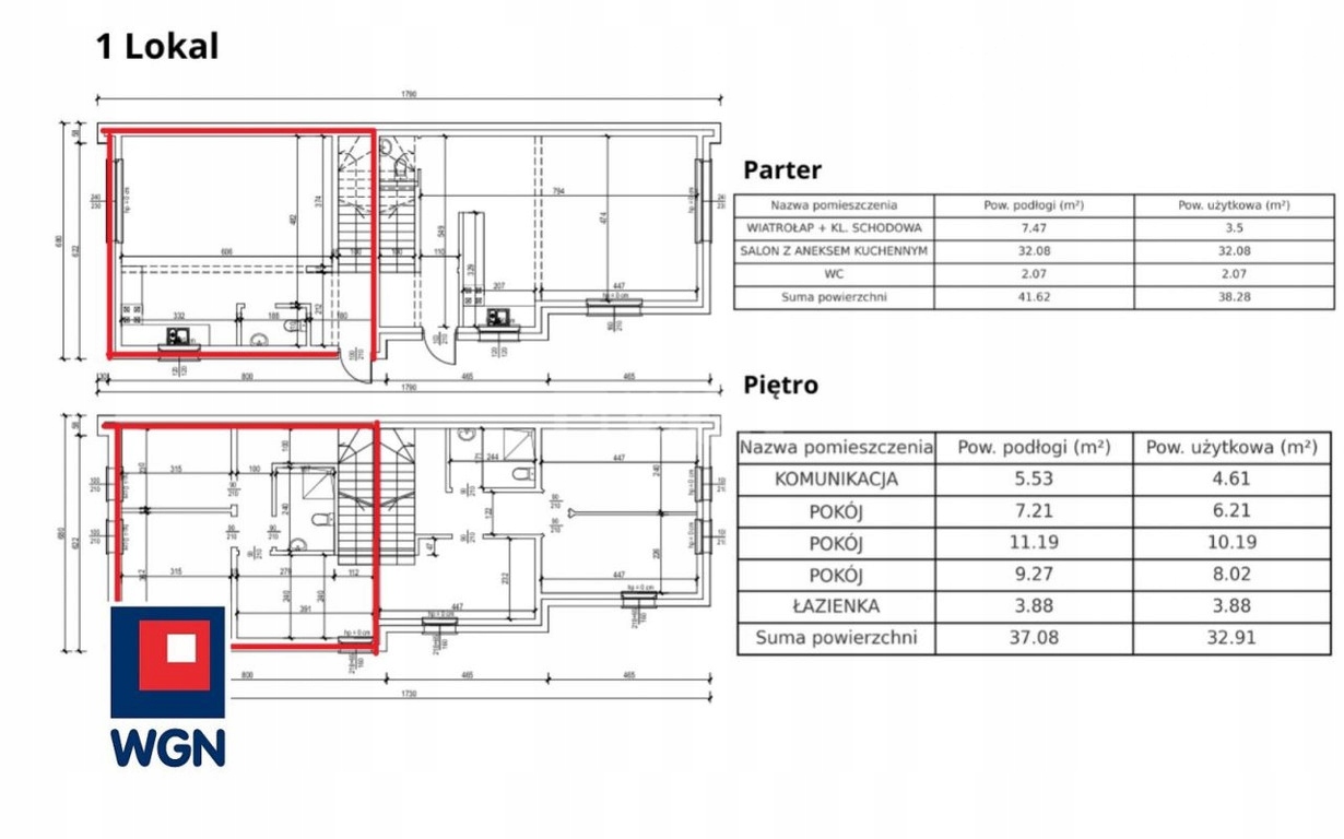
Budynek został zaprojektowany indywidualnie, w nowoczesnej i minimalistycznej stylistyce, z prostą bryłą i elegancką elewacją. Oferowany lokal posiada powierzchnię całkowitą 78,70 m2 i został rozplanowany w sposób funkcjonalny, z wyraźnym podziałem na strefę dzienną i nocną. Na parterze (41,62 m2) znajduje się przestronny salon z wyjściem na taras, aneks kuchenny, toaleta oraz wiatrołap. Piętro (37,08 m2) to trzy wygodne sypialnie oraz łazienka.

Dom wykonano w wysokim standardzie stanu deweloperskiego - ściany ocieplono styropianem grafitowym 20 cm, poddasze izolowane jest pianą PUR, a źródłem ogrzewania będzie nowoczesna pompa ciepła typu monoblok. Zastosowano stolarkę okienną PCV. Działka zostanie ogrodzona, przed domem będzie kostka brukowa. Do lokalu przynależne są 2 miejsca postojowe.

Dojazd prowadzi drogą utwardzoną gminna.

Planowany termin oddania budynku do użytku to koniec 2025 roku.

Zapraszam na prezentację!

Roksana Domaros

Więcej ciekawych ofert znajdziesz na www.wgn.pl, www.wejherowowgn.pl

Informacje o nieruchomości zostały sporządzone na podstawie oświadczeń i nie są ofertą w rozumieniu przepisów prawa. Mają wyłącznie charakter informacyjny i mogą podlegać aktualizacji.

Pamiętaj, że współpracując z WGN Wejherowo biurem nieruchomości działającymi na terenie Trójmiasta, oraz małego Trójmiasta Kaszubskiego OTRZYMUJESZ PEŁNĄ OBSŁUGĘ.

Wyróżniamy się pełnym zaangażowaniem, ekspercką wiedzą i najwyższym poziomem usług opartych na ponad 30-letnim doświadczeniu. Stosujemy System Jakości ZJ WGN oraz Kodeks Etyki Zawodowej Polskiej Federacji Rynku Nieruchomości.

Zapewniamy pomoc w uzyskaniu najkorzystniejszego kredytu na zakup nieruchomości.

WGN zapewnia rynkowe ceny, bezpieczeństwo korzystnej transakcji oraz pomoc notariusza.

Lokalizacja:

Kraj: Polska

Wojewodztwo: Pomorskie

Powiat: Wejherowski (pow.)

Miejscowosc: Reda

Ulica: Rekowo Dolne(ref. A1541070595)

Cena za m² 8005.08 zł
Rynek pierwotny
Rok budowy 2025
Powierzchnia działki 297 m²
Ogrodzenie metalowe/kute
Droga dojazdowa utwardzona
Media prąd
Liczba pokoi 4
Forma własności własność
Powierzchnia mieszkalna 79 m²
Powierzchnia użytkowa 79 m²
Materiał budowlany beton
Rodzaj zabudowy bliźniak
Liczba pięter budynku 1
Zgłoś naruszenie zasad
Oferta: 10b4a399-20be-47fb-a93e-daa863187daf

Podobne wyszukiwania

Domy na sprzedaż Warszawa  
(1128)
Domy na sprzedaż Grodzisk Mazowiecki  
(370)
Domy na sprzedaż Osowiec  
(189)
Domy na sprzedaż Opole  
(149)
Domy na sprzedaż Lublin  
(102)
Domy na sprzedaż Jaktorów  
(97)
Domy na sprzedaż Brwinów  
(95)
Domy na sprzedaż Jelenia Góra  
(72)
Domy na sprzedaż Ustroń  
(64)
Domy na sprzedaż Gliwice  
(59)
Domy na sprzedaż Stargard  
(56)
Domy na sprzedaż Kielce  
(56)
Domy na sprzedaż Osielsko  
(54)
Domy na sprzedaż Kobyłka  
(50)
Domy na sprzedaż Sosnowiec  
(45)
Domy na sprzedaż Mikołów  
(39)
Domy na sprzedaż Tczew  
(38)
Domy na sprzedaż Łazy  
(38)
Domy na sprzedaż Łochowo  
(37)
Domy na sprzedaż Legionowo  
(35)
Domy na sprzedaż Międzyborów  
(34)
Domy na sprzedaż Myszków  
(30)
Domy na sprzedaż Mogilany  
(29)
Domy na sprzedaż Mysłowice  
(27)
Domy na sprzedaż Bolesławiec  
(27)
Domy na sprzedaż Szczyrk  
(26)
Domy na sprzedaż Rączna  
(25)
Domy na sprzedaż Elbląg  
(25)
Domy na sprzedaż Wiązowna  
(25)
Domy na sprzedaż Zgierz  
(23)
Domy na sprzedaż Zabierzów  
(22)
Domy na sprzedaż Wołowice  
(22)
Domy na sprzedaż Mikołajki  
(21)
Domy na sprzedaż Gryfice  
(21)
Domy na sprzedaż Ełk  
(21)
Domy na sprzedaż Goleszów  
(20)
Domy na sprzedaż Głosków  
(20)
Domy na sprzedaż Grabówka  
(19)
Domy na sprzedaż Nowy Targ  
(19)
Domy na sprzedaż Siemianowice Śląskie  
(19)
Domy na sprzedaż Żywiec  
(19)
Domy na sprzedaż Wałcz  
(18)
Domy na sprzedaż Chrząstawa Mała  
(18)
Domy na sprzedaż Łeba  
(18)
Domy na sprzedaż Koło  
(18)
Domy na sprzedaż Jeszkowice  
(17)
Domy na sprzedaż Nadolice Małe  
(17)
Domy na sprzedaż Komorniki  
(17)
Domy na sprzedaż Będzin  
(17)
Domy na sprzedaż Strzeniówka  
(16)
Domy na sprzedaż Szczecinek  
(16)
Domy na sprzedaż Ostrów Wielkopolski  
(16)
Domy na sprzedaż Myślenice  
(16)
Domy na sprzedaż Zielonka  
(16)
Domy na sprzedaż Wołów  
(16)
Domy na sprzedaż Skrzeszew  
(16)
Domy na sprzedaż Tarnowo Podgórne  
(15)
Domy na sprzedaż Chodzież  
(15)
Domy na sprzedaż Zawada  
(15)
Domy na sprzedaż Wadowice  
(15)
Domy na sprzedaż Jarosław  
(15)
Domy na sprzedaż Libertów  
(14)
Domy na sprzedaż Charzyno  
(14)
Domy na sprzedaż Białe Błota  
(14)
Domy na sprzedaż Bochnia  
(13)
Domy na sprzedaż Chrząstawa Wielka  
(13)
Domy na sprzedaż Limanowa  
(13)
Domy na sprzedaż Pępowo  
(13)
Domy na sprzedaż Skierniewice  
(13)
Domy na sprzedaż Brzoza  
(13)
Domy na sprzedaż Kolbudy  
(13)
Domy na sprzedaż Nowa Wieś  
(12)
Domy na sprzedaż Dębe Wielkie  
(12)
Domy na sprzedaż Malawa  
(12)
Domy na sprzedaż Słupca  
(12)
Domy na sprzedaż Borówiec  
(12)
Domy na sprzedaż Stężyca  
(12)
Domy na sprzedaż Kamionki  
(12)
Domy na sprzedaż Chrzanów Mały  
(12)
Domy na sprzedaż Jantar  
(11)
Domy na sprzedaż Międzybrodzie Bialskie  
(11)
Domy na sprzedaż Jaworzyna Śląska  
(11)
Domy na sprzedaż Szpetal Górny  
(11)
Domy na sprzedaż Lusina  
(11)
Domy na sprzedaż Orle  
(10)
Domy na sprzedaż Nieporęt  
(10)
Domy na sprzedaż Gościno  
(10)
Domy na sprzedaż Ściejowice  
(10)
Domy na sprzedaż Okuninka  
(10)
Domy na sprzedaż Kamień  
(10)
Domy na sprzedaż Stryszawa  
(9)
Domy na sprzedaż Starachowice  
(9)
Domy na sprzedaż Kudowa-Zdrój  
(9)
Domy na sprzedaż Ciele  
(9)
Domy na sprzedaż Kłodawa  
(9)
Domy na sprzedaż Wyszków  
(9)